ENG
關於信託
集團簡介
經營理念
發展里程
企業文化
人才政策
團隊成員
業務範圍
物業發展
海外投資
建築工程
酒店
物業代理
項目管理
物業管理
室內設計
共享空間
廣告策劃
餐飲服務
地產物業
物業推介
社會公益
信託慈善會
推動都市更新
構建綠色生活
企業稅賦
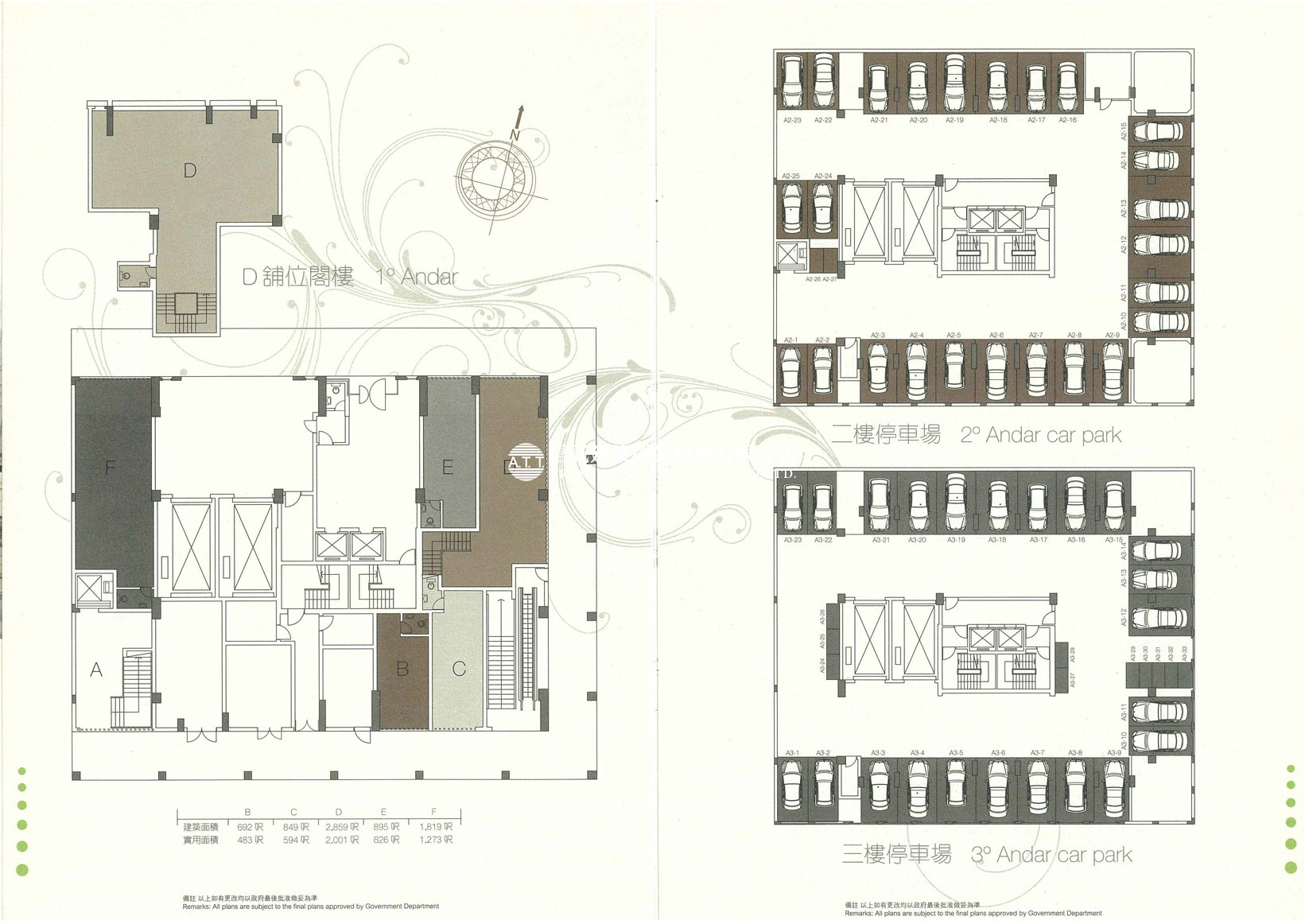
信愉花園
落成:2007
地區:澳門
類型:
花地瑪堂區(北區)
樓盤簡介:
地段面積 : 820㎡
總建築面積 : 7,616㎡
舖位 : 6
住宅 : 68
車位 : 48
電單車位 : 12
總單位數目 : 134
查看其它項目
圖像
總體規劃